Проект современного двухэтажного дома с вторым светом
Стоимость дома: от 7 649 800 ₽
Простое по форме строение удачно дополнено современным экстерьером в темных тонах (штукатурка и натуральное дерево), что придает дому шарма, строгости и элегантности. Такой фасад привлекает внимание каждого прохожего.
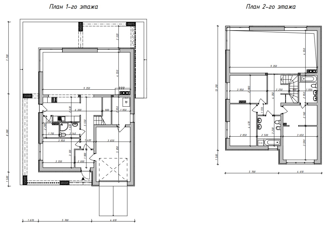
Дневная зона является прекрасным местом для приема гостей и проведения семейных вечеров. Здесь спроектирована красивая просторная гостиная, обеденная зона, совмещенные в единое пространство, и кухня.
На первом этаже также спроектирован кабинет, что по достоинству оценят застройщики, предпочитающие работать дома.
Ночная часть дома размещена на втором этаже и представлена тремя спальнями. Главная спальня имеет большую площадь и оснащена просторным гардеробом и индивидуальной ванной комнатой.
Дневная зона является прекрасным местом для приема гостей и проведения семейных вечеров. Здесь спроектирована красивая просторная гостиная, обеденная зона, совмещенные в единое пространство, и кухня.
На первом этаже также спроектирован кабинет, что по достоинству оценят застройщики, предпочитающие работать дома.
Ночная часть дома размещена на втором этаже и представлена тремя спальнями. Главная спальня имеет большую площадь и оснащена просторным гардеробом и индивидуальной ванной комнатой.
ТЕХНОЛОГИЯ СТРОИТЕЛЬСТВА
Стены: газобетон/керамические блоки/пеноблоки/пенобетон
Тип фундамента: ленточный сборно-монолитный/блоки ФБС
Кровля: ПВХ мембрана, технониколь
Технология: каменный
Тип перекрытия: монолитное/плиты пустотные
Тип фундамента: ленточный сборно-монолитный/блоки ФБС
Кровля: ПВХ мембрана, технониколь
Технология: каменный
Тип перекрытия: монолитное/плиты пустотные
ПЛОЩАДЬ И ГАБАРИТЫ
Площадь дома/общая площадь: 177,8 / 197,7 m²
Площадь застройки: 305,38 m²
Строительный объем: 1 145 m³
Высота дома: 7,1 m
Угол наклона кровли: 3°
Площадь кровли: 116,68 m²
Площадь застройки: 305,38 m²
Строительный объем: 1 145 m³
Высота дома: 7,1 m
Угол наклона кровли: 3°
Площадь кровли: 116,68 m²
1-ЫЙ ЭТАЖ 110,2 / 130,1 m²
Гараж: 21,4 m²
Котельная: 5,8 m²
Прихожая: 3,8 m² / 2,8 m²
Холл + лестница: 9,8 m²
Кабинет: 11,1 m²
Ванная комната: 3,5 m²
Кладовая: 3,2 m² / 4,1 m²
Кухня: 9,6 m²
Гостиная+ столовая: 42,1 m²
Терраса: 0,0 m² / 19,9 m²
Котельная: 5,8 m²
Прихожая: 3,8 m² / 2,8 m²
Холл + лестница: 9,8 m²
Кабинет: 11,1 m²
Ванная комната: 3,5 m²
Кладовая: 3,2 m² / 4,1 m²
Кухня: 9,6 m²
Гостиная+ столовая: 42,1 m²
Терраса: 0,0 m² / 19,9 m²
2-ОЙ ЭТАЖ 67,6 / 67,6 m²
Холл: 8,4 m²
Гардеробная: 7,8 m²
Спальня: 13,1 m²
Ванная комната: 8,0 m²
Спальня: 12,9 m²
Спальня: 11,6 m²
Ванная комната: 5,8 m²
Гардеробная: 7,8 m²
Спальня: 13,1 m²
Ванная комната: 8,0 m²
Спальня: 12,9 m²
Спальня: 11,6 m²
Ванная комната: 5,8 m²
РЕКОМЕНДУЕМЫЕ РАЗМЕРЫ УЧАСТКА
Ширина: 19,98 m
Длина: 27,58 m
Размеры фасада: 11,98 m
Длина: 27,58 m
Размеры фасада: 11,98 m
ЛИНЕЙНЫЕ РАЗМЕРЫ ПОМЕЩЕНИЙ
Стоимость строительства
двухэтажного дома
двухэтажного дома
Базовый+
Фундамент, стены
от 17 500 ₽/м2
Проект АС
(архитектурно-строительный)
(архитектурно-строительный)
Разметка дома на участке (с посадкой дома), земляные работы (работа с экскаватором), щебеночная подготовка
Фундамент (свайный*, ленточный, ростверковый, блочный, плита*)
Обратная засыпка с трамбованием, с заведением коммуникаций (канализация и водоснабжение) ниже отметки 0.00 под полом
Армированная плита на отметке 0.00 - 100-120мм. Бетон марки М-250
Гидроизоляция под кладку
Колонны монолитные армированные,
Несущие стены: натуральный камень(ракушняк) 400 мм/ шлакоблок 400 мм/ газобетон* 200, 300 мм, полистиролбетон* 300 мм, кирпич*,
Сейсмопояс, несущие ригеля (армированный железобетонный каркас по всему периметру)
Несущие стены: натуральный камень(ракушняк) 400 мм/ шлакоблок 400 мм/ газобетон* 200, 300 мм, полистиролбетон* 300 мм, кирпич*,
Сейсмопояс, несущие ригеля (армированный железобетонный каркас по всему периметру)
Межэтажное перекрытие железобетонной плиты, монолитное перекрытие, деревянное перекрытие (с проемом под лестницу)
Фундамент, стены, кровля
от 25 500 ₽/м2
Потолочное перекрытие: деревянное перекрытие, монолитное перекрытие*
Кровля: металлочерепица, профнастил, битумная черепица*, натуральная черепица*, каркас деревянный
Водосточная система
Дымовентиляционные каналы с выходом в кровле и обшивкой профлистом, установка зонта
Софиты металлические
*Цена на позицию под звездочкой рассчитывается индивидуально
Тёплый контур
от 37 200 ₽/м2
Комплектация
Базовая
Базовая
Утепление кровли по перекрытию в 100 мм (утеплитель изовер рулонный)
Лестница монолитная*, металлическая
Устройство внутренних перегородок шлакоблок 120 мм, ракушечник 180 мм, газобетон 200 мм*, кирпич*
Окна пластиковые 2х камерные (три стекла), профиль Рихао
Дверь входная металлическая, утепленная
Утепление (пенопласт, минеральная вата*), декоративная штукатурка, вентилируемый фасад*, кирпич*
Автономная канализация до 3-4х человек "Под ключ" В ПОДАРОК
*Цена на позицию под звездочкой рассчитывается индивидуально
Комфорт
от 50 500 ₽/м2
Комплектация
Тёплый контур
Тёплый контур
Лестница монолитная, металлическая (обшитая деревянными ступенями)*
Разводка по электричеству с установкой подрозетников и распред. коробок, с обвязкой щита электричества с группой автоматов (внутренние сети)
Штукатурка, шпаклевание на 1 слой под обои, устройство откосов (оконных, дверных)*
Разводка по воде (горячая, холодная) и канализации (внутренние сети)
Котельная: обвязка оборудования (котел входит в стоимость)
Прокладка теплых полов
Установка радиаторов (радиаторы входят в стоимость)
Чистовая стяжка и настилы под финишное покрытие пола
Автономная канализация до 3-4х человек "Под ключ" В ПОДАРОК
Техническое сопровождение ввода дома в эксплуатацию с получением адреса
*Цена на позицию под звездочкой рассчитывается индивидуально
С нами выгодно!
Проект дома - в подарок
При заказе строительства дома "под ключ" - мы разработаем проект бесплатно
Наши цены на 11% ниже рынка
Напрямую работаем с карьерами и производителями строительных материалов. Имеем постоянные бригады рабочих, свою производственную базу, свою строительную технику, свой РБУ. Поэтому себестоимость наших работ ниже, чем у конкурентов, а качество - выше
Фиксированная стоимость работ
Цена прописана в договоре и не меняется в ходе строительства
Оставьте заявку
и наши специалисты предоставят Вам бесплатную консультацию по всем интересующим Вас вопросам, а так же произведут детализированный расчёт стоимости интересующих Вас услуг и работ
ОФОРМИТЕ ЗАЯВКУ И ПОЛУЧИТЕ ПОДАРОК
АКЦИЯ
ПРИ ЗАКАЗЕ ДОМА
СЕПТИК ИЛИ ПРОЕКТ В ПОДАРОК
0
Дней :
0 0
Часов :
0 0
Минут :
0 0
Секунд *до конца акции
Головной офис
Контакты
Адрес: г.Севастополь, Камышовое шоссе, 25А
Телефон: +7 (978) 761-91-05
Email: i89787619105@yandex.ru
ИП Калинина О.В.
ИНН 744403785258
ОГРНИП 318745600244284
ОГРНИП 318745600244284
Работаем по всему Крыму
г. Евпатория, ул. Эскадронная 32, ТЦ "Новая Площадь"
Тел.: +7 (978) 761-91-05
Тел.: +7 (978) 761-91-05
пгт. Черноморское
Тел.: +7 (978) 761-91-05
Тел.: +7 (978) 761-91-05
г. Симферополь
Тел.: +7 (978) 761-91-05
Тел.: +7 (978) 761-91-05
г. Ялта
Тел.: +7 (978) 761-91-05
Тел.: +7 (978) 761-91-05
г. Алушта
Тел.: +7 (978) 761-91-05
Тел.: +7 (978) 761-91-05
г. Судак
Тел.: +7 (978) 761-91-05
Тел.: +7 (978) 761-91-05