Маленький одноэтажный дом с двускатной кровлей
Данный проект представляет собой маленький одноэтажный дом с двускатной кровлей. Он объединяет в себе достаточно много преимуществ: компактный, недорогой в строительстве и эксплуатации и, вместе с тем, стильный и уютный. Несмотря на свои маленькие размеры, он полностью оснащен всем необходимым для постоянного проживания.
Стоимость дома: от 2 543 500 ₽
Простая форма дома, его небольшая площадь, двускатная крыша, помогают значительно сократить строительные и эксплуатационные расходы;
Комфорт в использовании помещений на одном уровне исключает необходимость перехода с этажа на этаж, что особенно актуально для людей пожилого возраста, и маленьких детей;
Практичная и функциональная планировка позволяет максимально рационально использовать всю площадь дома;
Отсутствие внутренних несущих стен дает возможность вносить многочисленные изменения в планировку: например, можно отказаться от шкафа в холле в пользу гостиной, а можно увеличить площадь спальни за счет гостиной;
Открытая кухня зрительно увеличивает пространство дневной зоны, способствует ее лучшему освещению, что по достоинству оценят любители открытых планировок.
Комфорт в использовании помещений на одном уровне исключает необходимость перехода с этажа на этаж, что особенно актуально для людей пожилого возраста, и маленьких детей;
Практичная и функциональная планировка позволяет максимально рационально использовать всю площадь дома;
Отсутствие внутренних несущих стен дает возможность вносить многочисленные изменения в планировку: например, можно отказаться от шкафа в холле в пользу гостиной, а можно увеличить площадь спальни за счет гостиной;
Открытая кухня зрительно увеличивает пространство дневной зоны, способствует ее лучшему освещению, что по достоинству оценят любители открытых планировок.
ТЕХНОЛОГИЯ СТРОИТЕЛЬСТВА
Стены: газобетон/керамические блоки
Тип фундамента: ленточный сборно-монолитный/блоки ФБС
Кровля: цементно-песчаная черепица/металлочерепица/керамическая черепица
Технология: каменный
Тип перекрытия: по деревянным балкам
Тип фундамента: ленточный сборно-монолитный/блоки ФБС
Кровля: цементно-песчаная черепица/металлочерепица/керамическая черепица
Технология: каменный
Тип перекрытия: по деревянным балкам
ПЛОЩАДЬ И ГАБАРИТЫ
Площадь дома/общая площадь: 52,3 / 59,2 m²
Площадь застройки: 70,25 m² (без учета террасы)
Строительный объем: 235 m³
Высота дома: 5,75 m
Угол наклона кровли: 30°
Площадь кровли: 106,2 m²
Площадь застройки: 70,25 m² (без учета террасы)
Строительный объем: 235 m³
Высота дома: 5,75 m
Угол наклона кровли: 30°
Площадь кровли: 106,2 m²
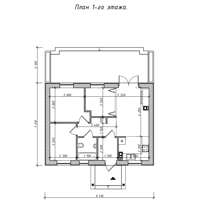
1-ЫЙ ЭТАЖ 52,3 / 59,2 m²
Прихожая: 3,4 m²
Кухня: 5,2 m²
Спальня: 9,5 m²
Гостиная: 18,4 m²
Спальня: 7,5 m²
Холл: 5,0 m²
Ванная комната: 3,4 m²
Терраса: 0,0 m² / 6,9 m²
Кухня: 5,2 m²
Спальня: 9,5 m²
Гостиная: 18,4 m²
Спальня: 7,5 m²
Холл: 5,0 m²
Ванная комната: 3,4 m²
Терраса: 0,0 m² / 6,9 m²
РЕКОМЕНДУЕМЫЕ РАЗМЕРЫ УЧАСТКА
Ширина: 19,21 m
Длина: 17,51 m
Размеры фасада: 9,51 m
Длина: 17,51 m
Размеры фасада: 9,51 m
ЛИНЕЙНЫЕ РАЗМЕРЫ ПОМЕЩЕНИЙ
Стоимость строительства
одноэтажного дома
одноэтажного дома
Базовый+
Фундамент, стены
от 20 000 ₽/м2
Проект АС
(архитектурно-строительный)
(архитектурно-строительный)
Разметка дома на участке (с посадкой дома), земляные работы (работа с экскаватором), щебеночная подготовка
Фундамент (свайный*, ленточный, ростверковый, блочный, плита*)
Обратная засыпка с трамбованием, с заведением коммуникаций (канализация и водоснабжение) ниже отметки 0.00 под полом
Армированная плита на отметке 0.00 - 100-120мм. Бетон марки М-250
Гидроизоляция под кладку
Колонны монолитные армированные,
Несущие стены: натуральный камень(ракушняк) 400 мм/ шлакоблок 400 мм/ газобетон* 200, 300 мм, полистиролбетон* 300 мм, кирпич*,
Сейсмопояс, несущие ригеля (армированный железобетонный каркас по всему периметру)
Несущие стены: натуральный камень(ракушняк) 400 мм/ шлакоблок 400 мм/ газобетон* 200, 300 мм, полистиролбетон* 300 мм, кирпич*,
Сейсмопояс, несущие ригеля (армированный железобетонный каркас по всему периметру)
Фундамент, стены, кровля
от 28 000 ₽/м2
Потолочное перекрытие: деревянное перекрытие, монолитное перекрытие*
Кровля: металлочерепица, профнастил, битумная черепица*, натуральная черепица*, каркас деревянный
Водосточная система
Дымовентиляционные каналы с выходом в кровле и обшивкой профлистом, установка зонта
Софиты металлические
*Цена на позицию под звездочкой рассчитывается индивидуально
Тёплый контур
от 38 700 ₽/м2
Комплектация
Базовая
Базовая
Утепление кровли по перекрытию в 100 мм (утеплитель изовер рулонный)
Устройство внутренних перегородок шлакоблок 120 мм, ракушечник 180 мм, газобетон 200 мм*, кирпич*
Окна пластиковые 2х камерные (три стекла), профиль Рихао
Дверь входная металлическая, утепленная
Утепление (пенопласт, минеральная вата*), декоративная штукатурка, вентилируемый фасад*, кирпич*
Автономная канализация до 3-4х человек "Под ключ" В ПОДАРОК
*Цена на позицию под звездочкой рассчитывается индивидуально
Комфорт
от 52 000 ₽/м2
Комплектация
Тёплый контур
Тёплый контур
Разводка по электричеству с установкой подрозетников и распред. коробок, с обвязкой щита электричества с группой автоматов (внутренние сети)
Штукатурка, шпаклевание на 1 слой под обои, устройство откосов (оконных, дверных)*
Разводка по воде (горячая, холодная) и канализации (внутренние сети)
Котельная: обвязка оборудования (котел входит в стоимость)
Прокладка теплых полов
Установка радиаторов (радиаторы входят в стоимость)
Чистовая стяжка и настилы под финишное покрытие пола
Автономная канализация до 3-4х человек "Под ключ" В ПОДАРОК
Техническое сопровождение ввода дома в эксплуатацию с получением адреса
*Цена на позицию под звездочкой рассчитывается индивидуально
С нами выгодно!
Проект дома - в подарок
При заказе строительства дома "под ключ" - мы разработаем проект бесплатно
Наши цены на 11% ниже рынка
Напрямую работаем с карьерами и производителями строительных материалов. Имеем постоянные бригады рабочих, свою производственную базу, свою строительную технику, свой РБУ. Поэтому себестоимость наших работ ниже, чем у конкурентов, а качество - выше
Фиксированная стоимость работ
Цена прописана в договоре и не меняется в ходе строительства
Оставьте заявку
и наши специалисты предоставят Вам бесплатную консультацию по всем интересующим Вас вопросам, а так же произведут детализированный расчёт стоимости интересующих Вас услуг и работ
ОФОРМИТЕ ЗАЯВКУ И ПОЛУЧИТЕ ПОДАРОК
АКЦИЯ
ПРИ ЗАКАЗЕ ДОМА
СЕПТИК ИЛИ ПРОЕКТ В ПОДАРОК
0
Дней :
0 0
Часов :
0 0
Минут :
0 0
Секунд *до конца акции
Головной офис
Контакты
Адрес: г.Севастополь, Камышовое шоссе, 25А
Телефон: +7 (978) 761-91-05
Email: i89787619105@yandex.ru
ИП Калинина О.В.
ИНН 744403785258
ОГРНИП 318745600244284
ОГРНИП 318745600244284
Работаем по всему Крыму
г. Евпатория, ул. Эскадронная 32, ТЦ "Новая Площадь"
Тел.: +7 (978) 761-91-05
Тел.: +7 (978) 761-91-05
пгт. Черноморское
Тел.: +7 (978) 761-91-05
Тел.: +7 (978) 761-91-05
г. Симферополь
Тел.: +7 (978) 761-91-05
Тел.: +7 (978) 761-91-05
г. Ялта
Тел.: +7 (978) 761-91-05
Тел.: +7 (978) 761-91-05
г. Алушта
Тел.: +7 (978) 761-91-05
Тел.: +7 (978) 761-91-05
г. Судак
Тел.: +7 (978) 761-91-05
Тел.: +7 (978) 761-91-05