Функциональный и респектабельный двухэтажный дом в современном стиле
Проект представляет собой функциональный двухэтажный дом в современном стиле.
Стоимость дома: от 3 594 800 ₽
Дом удобен для проживания семьи с двумя детьми. При этом ночная зона полностью спроектирована на верхнем этаже, что защищает приватную жизнь от посторонних глаз.
Дневная зона на первом этаже имеет открытый интерьер. За счет больших стеклянных дверей, ведущих на террасу, здесь всегда светло и уютно.
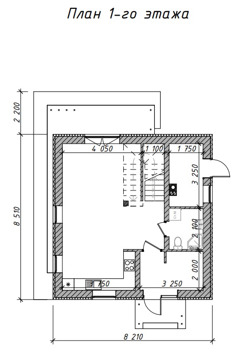
Помещение технического характера с прачечной имеет отдельный вход и спроектировано со стороны сада.
Прихожая удобная и просторная, может быть оснащена большими вместительными шкафами.
Проект предусматривает наличие санузла с душевой кабиной на первом этаже.
Дизайн экстерьера выполнен в современном стиле. Дом актуален в любой местности и выглядит стильно, привлекательно и респектабельно.
Дневная зона на первом этаже имеет открытый интерьер. За счет больших стеклянных дверей, ведущих на террасу, здесь всегда светло и уютно.
Помещение технического характера с прачечной имеет отдельный вход и спроектировано со стороны сада.
Прихожая удобная и просторная, может быть оснащена большими вместительными шкафами.
Проект предусматривает наличие санузла с душевой кабиной на первом этаже.
Дизайн экстерьера выполнен в современном стиле. Дом актуален в любой местности и выглядит стильно, привлекательно и респектабельно.
ТЕХНОЛОГИЯ СТРОИТЕЛЬСТВА
Стены: газобетон/керамические блоки/пеноблоки/пенобетон
Тип фундамента: ленточный монолитный/блоки ФБС
Кровля: цементно-песчаная черепица/металлочерепица/керамическая черепица
Технология: каменный
Тип перекрытия: монолитное/плиты пустотные
Тип фундамента: ленточный монолитный/блоки ФБС
Кровля: цементно-песчаная черепица/металлочерепица/керамическая черепица
Технология: каменный
Тип перекрытия: монолитное/плиты пустотные
ПЛОЩАДЬ И ГАБАРИТЫ
Площадь дома/общая площадь: 97,5 / 101,7 m²
Площадь застройки: 139,74 m²
Строительный объем: 510 m³
Высота дома: 9,07 m
Угол наклона кровли: 30°
Площадь кровли: 114,5 m²
Площадь застройки: 139,74 m²
Строительный объем: 510 m³
Высота дома: 9,07 m
Угол наклона кровли: 30°
Площадь кровли: 114,5 m²
1-ЫЙ ЭТАЖ 51,7 / 55,9 m²
Прихожая: 6,4 m²
Холл + лестница: 6,2 m²
Ванная комната: 3,7 m²
Кухня + столовая: 7,8 m²
Гостиная: 22,1 m²
Котельная: 5,5 m²
Терраса: 0,0 m² / 14,0 m²
Холл + лестница: 6,2 m²
Ванная комната: 3,7 m²
Кухня + столовая: 7,8 m²
Гостиная: 22,1 m²
Котельная: 5,5 m²
Терраса: 0,0 m² / 14,0 m²
2-ОЙ ЭТАЖ 45,8 / 45,8 m²
Спальня: 11,4 m²
Холл: 3,9 m²
Спальня: 11,9 m²
Спальня: 12,5 m²
Ванная комната: 6,1 m²
Холл: 3,9 m²
Спальня: 11,9 m²
Спальня: 12,5 m²
Ванная комната: 6,1 m²
РЕКОМЕНДУЕМЫЕ РАЗМЕРЫ УЧАСТКА
Ширина: 14,21 m
Длина: 18,51 m
Размеры фасада: 8,21 m
Длина: 18,51 m
Размеры фасада: 8,21 m
ЛИНЕЙНЫЕ РАЗМЕРЫ ПОМЕЩЕНИЙ
Стоимость строительства
двухэтажного дома
двухэтажного дома
Базовый+
Фундамент, стены
от 17 500 ₽/м2
Проект АС
(архитектурно-строительный)
(архитектурно-строительный)
Разметка дома на участке (с посадкой дома), земляные работы (работа с экскаватором), щебеночная подготовка
Фундамент (свайный*, ленточный, ростверковый, блочный, плита*)
Обратная засыпка с трамбованием, с заведением коммуникаций (канализация и водоснабжение) ниже отметки 0.00 под полом
Армированная плита на отметке 0.00 - 100-120мм. Бетон марки М-250
Гидроизоляция под кладку
Колонны монолитные армированные,
Несущие стены: натуральный камень(ракушняк) 400 мм/ шлакоблок 400 мм/ газобетон* 200, 300 мм, полистиролбетон* 300 мм, кирпич*,
Сейсмопояс, несущие ригеля (армированный железобетонный каркас по всему периметру)
Несущие стены: натуральный камень(ракушняк) 400 мм/ шлакоблок 400 мм/ газобетон* 200, 300 мм, полистиролбетон* 300 мм, кирпич*,
Сейсмопояс, несущие ригеля (армированный железобетонный каркас по всему периметру)
Межэтажное перекрытие железобетонной плиты, монолитное перекрытие, деревянное перекрытие (с проемом под лестницу)
Фундамент, стены, кровля
от 25 500 ₽/м2
Потолочное перекрытие: деревянное перекрытие, монолитное перекрытие*
Кровля: металлочерепица, профнастил, битумная черепица*, натуральная черепица*, каркас деревянный
Водосточная система
Дымовентиляционные каналы с выходом в кровле и обшивкой профлистом, установка зонта
Софиты металлические
*Цена на позицию под звездочкой рассчитывается индивидуально
Тёплый контур
от 37 200 ₽/м2
Комплектация
Базовая
Базовая
Утепление кровли по перекрытию в 100 мм (утеплитель изовер рулонный)
Лестница монолитная*, металлическая
Устройство внутренних перегородок шлакоблок 120 мм, ракушечник 180 мм, газобетон 200 мм*, кирпич*
Окна пластиковые 2х камерные (три стекла), профиль Рихао
Дверь входная металлическая, утепленная
Утепление (пенопласт, минеральная вата*), декоративная штукатурка, вентилируемый фасад*, кирпич*
Автономная канализация до 3-4х человек "Под ключ" В ПОДАРОК
*Цена на позицию под звездочкой рассчитывается индивидуально
Комфорт
от 50 500 ₽/м2
Комплектация
Тёплый контур
Тёплый контур
Лестница монолитная, металлическая (обшитая деревянными ступенями)*
Разводка по электричеству с установкой подрозетников и распред. коробок, с обвязкой щита электричества с группой автоматов (внутренние сети)
Штукатурка, шпаклевание на 1 слой под обои, устройство откосов (оконных, дверных)*
Разводка по воде (горячая, холодная) и канализации (внутренние сети)
Котельная: обвязка оборудования (котел входит в стоимость)
Прокладка теплых полов
Установка радиаторов (радиаторы входят в стоимость)
Чистовая стяжка и настилы под финишное покрытие пола
Автономная канализация до 3-4х человек "Под ключ" В ПОДАРОК
Техническое сопровождение ввода дома в эксплуатацию с получением адреса
*Цена на позицию под звездочкой рассчитывается индивидуально
С нами выгодно!
Проект дома - в подарок
При заказе строительства дома "под ключ" - мы разработаем проект бесплатно
Наши цены на 11% ниже рынка
Напрямую работаем с карьерами и производителями строительных материалов. Имеем постоянные бригады рабочих, свою производственную базу, свою строительную технику, свой РБУ. Поэтому себестоимость наших работ ниже, чем у конкурентов, а качество - выше
Фиксированная стоимость работ
Цена прописана в договоре и не меняется в ходе строительства
Оставьте заявку
и наши специалисты предоставят Вам бесплатную консультацию по всем интересующим Вас вопросам, а так же произведут детализированный расчёт стоимости интересующих Вас услуг и работ
ОФОРМИТЕ ЗАЯВКУ И ПОЛУЧИТЕ ПОДАРОК
АКЦИЯ
ПРИ ЗАКАЗЕ ДОМА
СЕПТИК ИЛИ ПРОЕКТ В ПОДАРОК
0
Дней :
0 0
Часов :
0 0
Минут :
0 0
Секунд *до конца акции
Головной офис
Контакты
Адрес: г.Севастополь, Камышовое шоссе, 25А
Телефон: +7 (978) 761-91-05
Email: i89787619105@yandex.ru
ИП Калинина О.В.
ИНН 744403785258
ОГРНИП 318745600244284
ОГРНИП 318745600244284
Работаем по всему Крыму
г. Евпатория, ул. Эскадронная 32, ТЦ "Новая Площадь"
Тел.: +7 (978) 761-91-05
Тел.: +7 (978) 761-91-05
пгт. Черноморское
Тел.: +7 (978) 761-91-05
Тел.: +7 (978) 761-91-05
г. Симферополь
Тел.: +7 (978) 761-91-05
Тел.: +7 (978) 761-91-05
г. Ялта
Тел.: +7 (978) 761-91-05
Тел.: +7 (978) 761-91-05
г. Алушта
Тел.: +7 (978) 761-91-05
Тел.: +7 (978) 761-91-05
г. Судак
Тел.: +7 (978) 761-91-05
Тел.: +7 (978) 761-91-05