Одноэтажный дом с фронтальным гаражом для двух автомобилей
Просторный одноэтажный дом с фронтальным гаражом для двух автомобилей привлекает внимание своей основательной добротностью, простым и в тоже время элегантным дизайном фасадов. Простые формы дома разнообразит интересное треугольное окно мансарды.
Стоимость дома: от 9 097 500 ₽
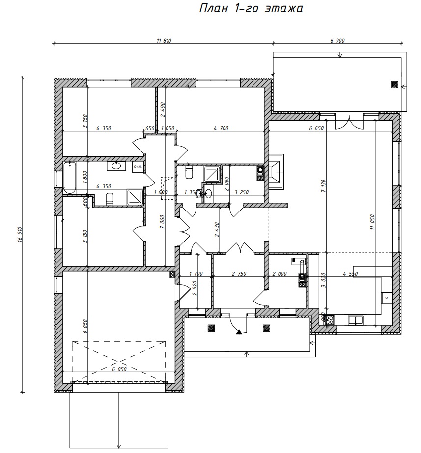
Расположение окон в дневной зоне с трех сторон (северной, западной, южной) гарантируют хорошее естественное освещение в течение всего дня.
Открытая кухня зрительно увеличивает пространство дневной зоны. При желании ее можно сделать полностью закрытой.
Кладовая расположенная рядом с кухней будет по достоинству оценена любой хозяйкой.
Расположенный в центре гостиной камин поможет создать уютную домашнюю атмосферу, а также согреет в холодную погоду.
Крытая терраса позволит приготовить отличный барбекю на свежем воздухе в любую погоду.
Прямой переход из гаража в дом упростит перенос вещей из машины в дом.
Большая ванная комната ночной зоны сможет вместить всю необходимую сантехнику. При необходимости она может быть разделена на две меньших, с прямым доступом к одной из них из спальни.
В каждой спальне предусмотрено место для вместительных шкафов.
Проект предусматривает возможность обустройства жилой мансарды на чердаке, что позволит увеличить площадь дома приблизительно на 90 м2.
Традиционный характер дома будет по достоинству оценен сторонниками классического стиля в архитектуре.
Открытая кухня зрительно увеличивает пространство дневной зоны. При желании ее можно сделать полностью закрытой.
Кладовая расположенная рядом с кухней будет по достоинству оценена любой хозяйкой.
Расположенный в центре гостиной камин поможет создать уютную домашнюю атмосферу, а также согреет в холодную погоду.
Крытая терраса позволит приготовить отличный барбекю на свежем воздухе в любую погоду.
Прямой переход из гаража в дом упростит перенос вещей из машины в дом.
Большая ванная комната ночной зоны сможет вместить всю необходимую сантехнику. При необходимости она может быть разделена на две меньших, с прямым доступом к одной из них из спальни.
В каждой спальне предусмотрено место для вместительных шкафов.
Проект предусматривает возможность обустройства жилой мансарды на чердаке, что позволит увеличить площадь дома приблизительно на 90 м2.
Традиционный характер дома будет по достоинству оценен сторонниками классического стиля в архитектуре.
ТЕХНОЛОГИЯ СТРОИТЕЛЬСТВА
Стены: газобетон/керамические блоки
Тип фундамента: ленточный сборно-монолитный/блоки ФБС
Кровля: цементно-песчаная черепица/металлочерепица/керамическая черепица
Технология: каменный
Тип перекрытия: монолитное
Тип фундамента: ленточный сборно-монолитный/блоки ФБС
Кровля: цементно-песчаная черепица/металлочерепица/керамическая черепица
Технология: каменный
Тип перекрытия: монолитное
ПЛОЩАДЬ И ГАБАРИТЫ
Площадь дома/общая площадь: 214,0 / 220,0 m²
Площадь застройки: 319,77 m²
Строительный объем: 1 123,64 m³
Высота дома: 7,55 m
Угол наклона кровли: 30°
Площадь кровли: 389,65 m²
Площадь застройки: 319,77 m²
Строительный объем: 1 123,64 m³
Высота дома: 7,55 m
Угол наклона кровли: 30°
Площадь кровли: 389,65 m²
1-ЫЙ ЭТАЖ 214,0 / 220,0 m²
Прихожая: 8,0 m²
Холл: 10,9 m²
Гостиная+ столовая: 47,2 m²
Кухня: 16,8 m²
Кладовая: 4,9 m²
Котельная: 5,6 m²
Сан. узел: 3,6 m²
Холл: 11,3 m²
Спальня: 22,1 m²
Спальня: 17,9 m²
Ванная комната: 9,4 m²
Спальня: 14,6 m²
Гараж: 36,5 m²
Хоз. помещение: 5,2 m²
Терраса: 0,0 m² / 6,0 m²
Холл: 10,9 m²
Гостиная+ столовая: 47,2 m²
Кухня: 16,8 m²
Кладовая: 4,9 m²
Котельная: 5,6 m²
Сан. узел: 3,6 m²
Холл: 11,3 m²
Спальня: 22,1 m²
Спальня: 17,9 m²
Ванная комната: 9,4 m²
Спальня: 14,6 m²
Гараж: 36,5 m²
Хоз. помещение: 5,2 m²
Терраса: 0,0 m² / 6,0 m²
РЕКОМЕНДУЕМЫЕ РАЗМЕРЫ УЧАСТКА
Ширина: 26,71 m
Длина: 24,91 m
Размеры фасада: 18,71 m
Длина: 24,91 m
Размеры фасада: 18,71 m
ЛИНЕЙНЫЕ РАЗМЕРЫ ПОМЕЩЕНИЙ
Стоимость строительства
одноэтажного дома
одноэтажного дома
Базовый+
Фундамент, стены
от 20 000 ₽/м2
Проект АС
(архитектурно-строительный)
(архитектурно-строительный)
Разметка дома на участке (с посадкой дома), земляные работы (работа с экскаватором), щебеночная подготовка
Фундамент (свайный*, ленточный, ростверковый, блочный, плита*)
Обратная засыпка с трамбованием, с заведением коммуникаций (канализация и водоснабжение) ниже отметки 0.00 под полом
Армированная плита на отметке 0.00 - 100-120мм. Бетон марки М-250
Гидроизоляция под кладку
Колонны монолитные армированные,
Несущие стены: натуральный камень(ракушняк) 400 мм/ шлакоблок 400 мм/ газобетон* 200, 300 мм, полистиролбетон* 300 мм, кирпич*,
Сейсмопояс, несущие ригеля (армированный железобетонный каркас по всему периметру)
Несущие стены: натуральный камень(ракушняк) 400 мм/ шлакоблок 400 мм/ газобетон* 200, 300 мм, полистиролбетон* 300 мм, кирпич*,
Сейсмопояс, несущие ригеля (армированный железобетонный каркас по всему периметру)
Фундамент, стены, кровля
от 28 000 ₽/м2
Потолочное перекрытие: деревянное перекрытие, монолитное перекрытие*
Кровля: металлочерепица, профнастил, битумная черепица*, натуральная черепица*, каркас деревянный
Водосточная система
Дымовентиляционные каналы с выходом в кровле и обшивкой профлистом, установка зонта
Софиты металлические
*Цена на позицию под звездочкой рассчитывается индивидуально
Тёплый контур
от 38 700 ₽/м2
Комплектация
Базовая
Базовая
Утепление кровли по перекрытию в 100 мм (утеплитель изовер рулонный)
Устройство внутренних перегородок шлакоблок 120 мм, ракушечник 180 мм, газобетон 200 мм*, кирпич*
Окна пластиковые 2х камерные (три стекла), профиль Рихао
Дверь входная металлическая, утепленная
Утепление (пенопласт, минеральная вата*), декоративная штукатурка, вентилируемый фасад*, кирпич*
Автономная канализация до 3-4х человек "Под ключ" В ПОДАРОК
*Цена на позицию под звездочкой рассчитывается индивидуально
Комфорт
от 52 000 ₽/м2
Комплектация
Тёплый контур
Тёплый контур
Разводка по электричеству с установкой подрозетников и распред. коробок, с обвязкой щита электричества с группой автоматов (внутренние сети)
Штукатурка, шпаклевание на 1 слой под обои, устройство откосов (оконных, дверных)*
Разводка по воде (горячая, холодная) и канализации (внутренние сети)
Котельная: обвязка оборудования (котел входит в стоимость)
Прокладка теплых полов
Установка радиаторов (радиаторы входят в стоимость)
Чистовая стяжка и настилы под финишное покрытие пола
Автономная канализация до 3-4х человек "Под ключ" В ПОДАРОК
Техническое сопровождение ввода дома в эксплуатацию с получением адреса
*Цена на позицию под звездочкой рассчитывается индивидуально
С нами выгодно!
Проект дома - в подарок
При заказе строительства дома "под ключ" - мы разработаем проект бесплатно
Наши цены на 11% ниже рынка
Напрямую работаем с карьерами и производителями строительных материалов. Имеем постоянные бригады рабочих, свою производственную базу, свою строительную технику, свой РБУ. Поэтому себестоимость наших работ ниже, чем у конкурентов, а качество - выше
Фиксированная стоимость работ
Цена прописана в договоре и не меняется в ходе строительства
Оставьте заявку
и наши специалисты предоставят Вам бесплатную консультацию по всем интересующим Вас вопросам, а так же произведут детализированный расчёт стоимости интересующих Вас услуг и работ
ОФОРМИТЕ ЗАЯВКУ И ПОЛУЧИТЕ ПОДАРОК
АКЦИЯ
ПРИ ЗАКАЗЕ ДОМА
СЕПТИК ИЛИ ПРОЕКТ В ПОДАРОК
0
Дней :
0 0
Часов :
0 0
Минут :
0 0
Секунд *до конца акции
Головной офис
Контакты
Адрес: г.Севастополь, Камышовое шоссе, 25А
Телефон: +7 (978) 761-91-05
Email: i89787619105@yandex.ru
ИП Калинина О.В.
ИНН 744403785258
ОГРНИП 318745600244284
ОГРНИП 318745600244284
Работаем по всему Крыму
г. Евпатория, ул. Эскадронная 32, ТЦ "Новая Площадь"
Тел.: +7 (978) 761-91-05
Тел.: +7 (978) 761-91-05
пгт. Черноморское
Тел.: +7 (978) 761-91-05
Тел.: +7 (978) 761-91-05
г. Симферополь
Тел.: +7 (978) 761-91-05
Тел.: +7 (978) 761-91-05
г. Ялта
Тел.: +7 (978) 761-91-05
Тел.: +7 (978) 761-91-05
г. Алушта
Тел.: +7 (978) 761-91-05
Тел.: +7 (978) 761-91-05
г. Судак
Тел.: +7 (978) 761-91-05
Тел.: +7 (978) 761-91-05