Проект ДЭК-1-120
Проект представляет одноэтажный дом традиционного стиля с двумя спальнями
Стоимость дома: от 3 367 840 ₽
ТЕХНОЛОГИЯ СТРОИТЕЛЬСТВА
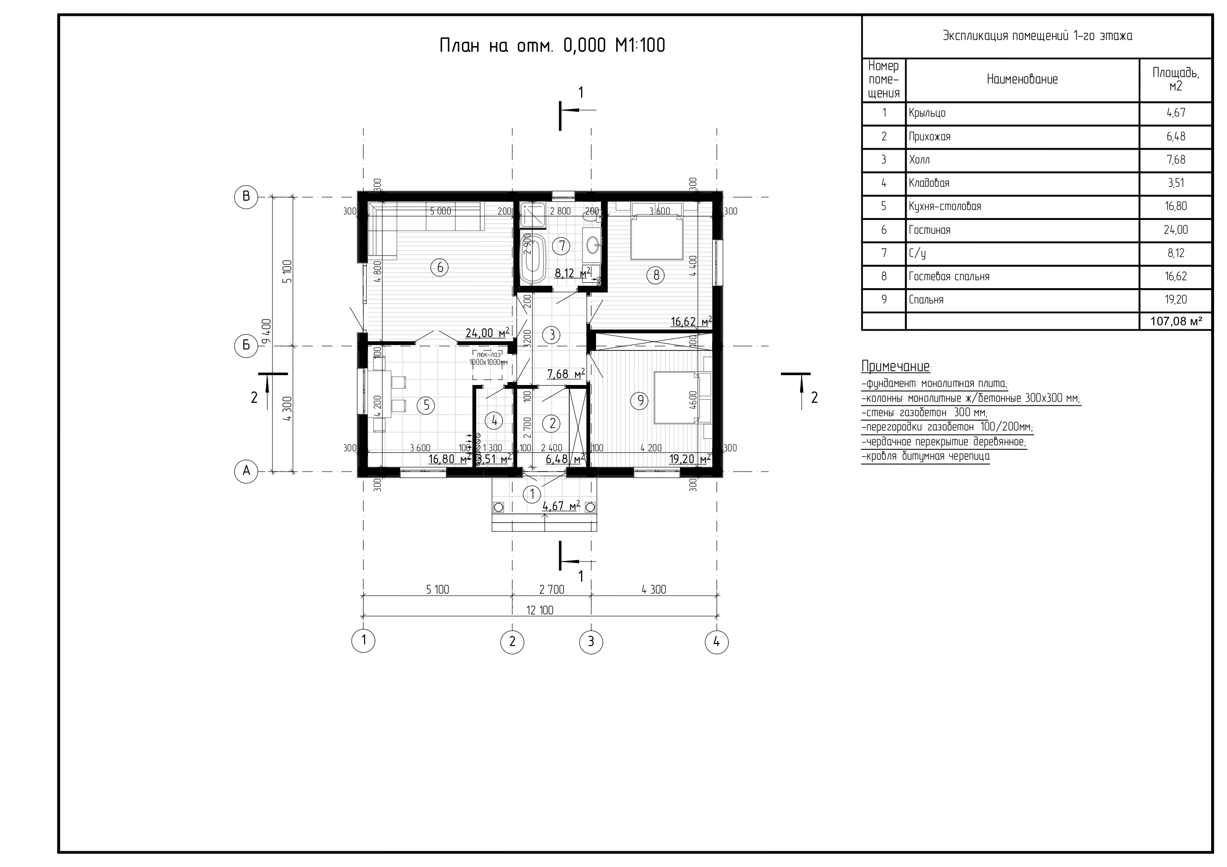
Стены: газобетон 300мм
Колонны: монолитные ж/бетонные 300х300 мм
Перегородки: газобетон 100/200 мм
Тип фундамента: монолитная плита
Технология: каменный
Чердачное перекрытие: деревянное
Кровля: битумная черепица
Колонны: монолитные ж/бетонные 300х300 мм
Перегородки: газобетон 100/200 мм
Тип фундамента: монолитная плита
Технология: каменный
Чердачное перекрытие: деревянное
Кровля: битумная черепица
ПЛОЩАДЬ И ГАБАРИТЫ
Площадь дома: 107,08 m²
Площадь застройки: 120,28 m²
Размеры: 9,7х12,4
Площадь застройки: 120,28 m²
Размеры: 9,7х12,4
Срок строительства: 60-70 рабочих дней
*Площадь застройки по кап. стенам, без учета: веранды, гаража, пристройки, котельной, насосной и т.д.
*Стоимость указана за Площадь застройки; без внутренней отделки
*Стоимость указана за Площадь застройки; без внутренней отделки
Стоимость строительства
одноэтажного дома
одноэтажного дома
Базовый+
Фундамент, стены
от 20 000 ₽/м2
Проект АС
(архитектурно-строительный)
(архитектурно-строительный)
Разметка дома на участке (с посадкой дома), земляные работы (работа с экскаватором), щебеночная подготовка
Фундамент (свайный*, ленточный, ростверковый, блочный, плита*)
Обратная засыпка с трамбованием, с заведением коммуникаций (канализация и водоснабжение) ниже отметки 0.00 под полом
Армированная плита на отметке 0.00 - 100-120мм. Бетон марки М-250
Гидроизоляция под кладку
Колонны монолитные армированные,
Несущие стены: натуральный камень(ракушняк) 400 мм/ шлакоблок 400 мм/ газобетон* 200, 300 мм, полистиролбетон* 300 мм, кирпич*,
Сейсмопояс, несущие ригеля (армированный железобетонный каркас по всему периметру)
Несущие стены: натуральный камень(ракушняк) 400 мм/ шлакоблок 400 мм/ газобетон* 200, 300 мм, полистиролбетон* 300 мм, кирпич*,
Сейсмопояс, несущие ригеля (армированный железобетонный каркас по всему периметру)
Фундамент, стены, кровля
от 28 000 ₽/м2
Потолочное перекрытие: деревянное перекрытие, монолитное перекрытие*
Кровля: металлочерепица, профнастил, битумная черепица*, натуральная черепица*, каркас деревянный
Водосточная система
Дымовентиляционные каналы с выходом в кровле и обшивкой профлистом, установка зонта
Софиты металлические
*Цена на позицию под звездочкой рассчитывается индивидуально
Тёплый контур
от 38 700 ₽/м2
Комплектация
Базовая
Базовая
Утепление кровли по перекрытию в 100 мм (утеплитель изовер рулонный)
Устройство внутренних перегородок шлакоблок 120 мм, ракушечник 180 мм, газобетон 200 мм*, кирпич*
Окна пластиковые 2х камерные (три стекла), профиль Рихао
Дверь входная металлическая, утепленная
Утепление (пенопласт, минеральная вата*), декоративная штукатурка, вентилируемый фасад*, кирпич*
Автономная канализация до 3-4х человек "Под ключ" В ПОДАРОК
*Цена на позицию под звездочкой рассчитывается индивидуально
Комфорт
от 52 000 ₽/м2
Комплектация
Тёплый контур
Тёплый контур
Разводка по электричеству с установкой подрозетников и распред. коробок, с обвязкой щита электричества с группой автоматов (внутренние сети)
Штукатурка, шпаклевание на 1 слой под обои, устройство откосов (оконных, дверных)*
Разводка по воде (горячая, холодная) и канализации (внутренние сети)
Котельная: обвязка оборудования (котел входит в стоимость)
Прокладка теплых полов
Установка радиаторов (радиаторы входят в стоимость)
Чистовая стяжка и настилы под финишное покрытие пола
Автономная канализация до 3-4х человек "Под ключ" В ПОДАРОК
Техническое сопровождение ввода дома в эксплуатацию с получением адреса
*Цена на позицию под звездочкой рассчитывается индивидуально
С нами выгодно!
Проект дома - в подарок
При заказе строительства дома "под ключ" - мы разработаем проект бесплатно
Наши цены на 11% ниже рынка
Напрямую работаем с карьерами и производителями строительных материалов. Имеем постоянные бригады рабочих, свою производственную базу, свою строительную технику, свой РБУ. Поэтому себестоимость наших работ ниже, чем у конкурентов, а качество - выше
Фиксированная стоимость работ
Цена прописана в договоре и не меняется в ходе строительства
Оставьте заявку
и наши специалисты предоставят Вам бесплатную консультацию по всем интересующим Вас вопросам, а так же произведут детализированный расчёт стоимости интересующих Вас услуг и работ
ОФОРМИТЕ ЗАЯВКУ И ПОЛУЧИТЕ ПОДАРОК
АКЦИЯ
ПРИ ЗАКАЗЕ ДОМА
СЕПТИК ИЛИ ПРОЕКТ В ПОДАРОК
0
Дней :
0 0
Часов :
0 0
Минут :
0 0
Секунд *до конца акции
Головной офис
Контакты
Адрес: г.Севастополь, Камышовое шоссе, 25А
Телефон: +7 (978) 761-91-05
Email: i89787619105@yandex.ru
ИП Калинина О.В.
ИНН 744403785258
ОГРНИП 318745600244284
ОГРНИП 318745600244284
Работаем по всему Крыму
г. Евпатория, ул. Эскадронная 32, ТЦ "Новая Площадь"
Тел.: +7 (978) 761-91-05
Тел.: +7 (978) 761-91-05
пгт. Черноморское
Тел.: +7 (978) 761-91-05
Тел.: +7 (978) 761-91-05
г. Симферополь
Тел.: +7 (978) 761-91-05
Тел.: +7 (978) 761-91-05
г. Ялта
Тел.: +7 (978) 761-91-05
Тел.: +7 (978) 761-91-05
г. Алушта
Тел.: +7 (978) 761-91-05
Тел.: +7 (978) 761-91-05
г. Судак
Тел.: +7 (978) 761-91-05
Тел.: +7 (978) 761-91-05