Аккуратный одноэтажный дом простой формы с двускатной крышей
Проект представляет собой аккуратный одноэтажный дом простой формы с двускатной крышей. Теплые традиционные очертания дома и его мягкая цветовая гамма прекрасно сочетаются с уютной функциональной планировкой. Проект можно использовать не только в качестве дачи, но и для постоянного проживания.
Стоимость дома: от 3 290 600 ₽
Простая форма дома, двускатная крыша и его небольшая площадь способствуют значительной экономии денежных средств во время строительства и эксплуатации.
Одноэтажная планировка дома предоставляет быстрый доступ к любому помещению, создавая тем самым дополнительный комфорт.
Отсутствие окон в боковых стенах дает возможность разместить дом на более узком участке.
Отсутствие несущих стен позволяет вносить изменения в планировку. Кухню можно сделать полностью или частично закрытой. Можно отказаться от одной из спален, разместив на ее месте кухню, и увеличив тем самым площадь гостиной, и т.д.
Открытая кухня зрительно увеличивает площадь дневной зоны, делает ее более светлой.
Расположение камина почти в центре гостиной позволит не только наслаждать его пламенем, но и поможет согреться в холодное время года.
Открытая терраса, не создавая излишней тени, способствует лучшему проникновению солнечных лучей в комнату.
Мягкий, традиционный стиль дома придется по вкусу любителям классической архитектуры.
Одноэтажная планировка дома предоставляет быстрый доступ к любому помещению, создавая тем самым дополнительный комфорт.
Отсутствие окон в боковых стенах дает возможность разместить дом на более узком участке.
Отсутствие несущих стен позволяет вносить изменения в планировку. Кухню можно сделать полностью или частично закрытой. Можно отказаться от одной из спален, разместив на ее месте кухню, и увеличив тем самым площадь гостиной, и т.д.
Открытая кухня зрительно увеличивает площадь дневной зоны, делает ее более светлой.
Расположение камина почти в центре гостиной позволит не только наслаждать его пламенем, но и поможет согреться в холодное время года.
Открытая терраса, не создавая излишней тени, способствует лучшему проникновению солнечных лучей в комнату.
Мягкий, традиционный стиль дома придется по вкусу любителям классической архитектуры.
ТЕХНОЛОГИЯ СТРОИТЕЛЬСТВА
Стены: газобетон/керамические блоки/пеноблоки/пенобетон
Тип фундамента: ленточный сборно-монолитный/блочный ФБС
Кровля: цементно-песчаная черепица/металлочерепица/керамическая черепица
Технология: каменный
Тип перекрытия: монолитное
Тип фундамента: ленточный сборно-монолитный/блочный ФБС
Кровля: цементно-песчаная черепица/металлочерепица/керамическая черепица
Технология: каменный
Тип перекрытия: монолитное
ПЛОЩАДЬ И ГАБАРИТЫ
Площадь дома/общая площадь: 91,3 / 97,5 m²
Площадь застройки: 113,62 m²
Строительный объем: 555 m³
Высота дома: 6,28 m
Угол наклона кровли: 30°
Площадь кровли: 171 m²
Площадь застройки: 113,62 m²
Строительный объем: 555 m³
Высота дома: 6,28 m
Угол наклона кровли: 30°
Площадь кровли: 171 m²
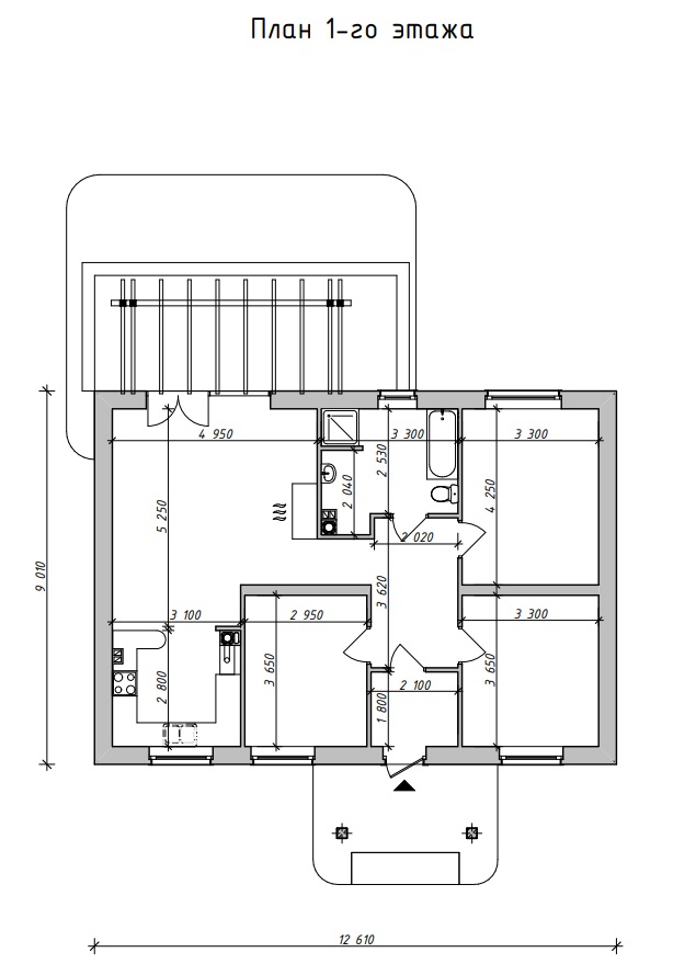
1-ЫЙ ЭТАЖ 91,3 / 97,5 m²
Прихожая: 3,8 m²
Холл: 9,0 m²
Спальня: 10,8 m²
Гостиная: 21,1 m²
Ванная комната: 8,6 m²
Спальня: 14,1 m²
Спальня: 12,1 m²
Кухня: 11,8 m²
Терраса: 0,0 m² / 6,2 m²
Холл: 9,0 m²
Спальня: 10,8 m²
Гостиная: 21,1 m²
Ванная комната: 8,6 m²
Спальня: 14,1 m²
Спальня: 12,1 m²
Кухня: 11,8 m²
Терраса: 0,0 m² / 6,2 m²
РЕКОМЕНДУЕМЫЕ РАЗМЕРЫ УЧАСТКА
Ширина: 18,61 m
Длина: 22,91 m
Размеры фасада: 12,61 m
Длина: 22,91 m
Размеры фасада: 12,61 m
ЛИНЕЙНЫЕ РАЗМЕРЫ ПОМЕЩЕНИЙ
Стоимость строительства
одноэтажного дома
одноэтажного дома
Базовый+
Фундамент, стены
от 20 000 ₽/м2
Проект АС
(архитектурно-строительный)
(архитектурно-строительный)
Разметка дома на участке (с посадкой дома), земляные работы (работа с экскаватором), щебеночная подготовка
Фундамент (свайный*, ленточный, ростверковый, блочный, плита*)
Обратная засыпка с трамбованием, с заведением коммуникаций (канализация и водоснабжение) ниже отметки 0.00 под полом
Армированная плита на отметке 0.00 - 100-120мм. Бетон марки М-250
Гидроизоляция под кладку
Колонны монолитные армированные,
Несущие стены: натуральный камень(ракушняк) 400 мм/ шлакоблок 400 мм/ газобетон* 200, 300 мм, полистиролбетон* 300 мм, кирпич*,
Сейсмопояс, несущие ригеля (армированный железобетонный каркас по всему периметру)
Несущие стены: натуральный камень(ракушняк) 400 мм/ шлакоблок 400 мм/ газобетон* 200, 300 мм, полистиролбетон* 300 мм, кирпич*,
Сейсмопояс, несущие ригеля (армированный железобетонный каркас по всему периметру)
Фундамент, стены, кровля
от 28 000 ₽/м2
Потолочное перекрытие: деревянное перекрытие, монолитное перекрытие*
Кровля: металлочерепица, профнастил, битумная черепица*, натуральная черепица*, каркас деревянный
Водосточная система
Дымовентиляционные каналы с выходом в кровле и обшивкой профлистом, установка зонта
Софиты металлические
*Цена на позицию под звездочкой рассчитывается индивидуально
Тёплый контур
от 38 700 ₽/м2
Комплектация
Базовая
Базовая
Утепление кровли по перекрытию в 100 мм (утеплитель изовер рулонный)
Устройство внутренних перегородок шлакоблок 120 мм, ракушечник 180 мм, газобетон 200 мм*, кирпич*
Окна пластиковые 2х камерные (три стекла), профиль Рихао
Дверь входная металлическая, утепленная
Утепление (пенопласт, минеральная вата*), декоративная штукатурка, вентилируемый фасад*, кирпич*
Автономная канализация до 3-4х человек "Под ключ" В ПОДАРОК
*Цена на позицию под звездочкой рассчитывается индивидуально
Комфорт
от 52 000 ₽/м2
Комплектация
Тёплый контур
Тёплый контур
Разводка по электричеству с установкой подрозетников и распред. коробок, с обвязкой щита электричества с группой автоматов (внутренние сети)
Штукатурка, шпаклевание на 1 слой под обои, устройство откосов (оконных, дверных)*
Разводка по воде (горячая, холодная) и канализации (внутренние сети)
Котельная: обвязка оборудования (котел входит в стоимость)
Прокладка теплых полов
Установка радиаторов (радиаторы входят в стоимость)
Чистовая стяжка и настилы под финишное покрытие пола
Автономная канализация до 3-4х человек "Под ключ" В ПОДАРОК
Техническое сопровождение ввода дома в эксплуатацию с получением адреса
*Цена на позицию под звездочкой рассчитывается индивидуально
С нами выгодно!
Проект дома - в подарок
При заказе строительства дома "под ключ" - мы разработаем проект бесплатно
Наши цены на 11% ниже рынка
Напрямую работаем с карьерами и производителями строительных материалов. Имеем постоянные бригады рабочих, свою производственную базу, свою строительную технику, свой РБУ. Поэтому себестоимость наших работ ниже, чем у конкурентов, а качество - выше
Фиксированная стоимость работ
Цена прописана в договоре и не меняется в ходе строительства
Оставьте заявку
и наши специалисты предоставят Вам бесплатную консультацию по всем интересующим Вас вопросам, а так же произведут детализированный расчёт стоимости интересующих Вас услуг и работ
ОФОРМИТЕ ЗАЯВКУ И ПОЛУЧИТЕ ПОДАРОК
АКЦИЯ
ПРИ ЗАКАЗЕ ДОМА
СЕПТИК ИЛИ ПРОЕКТ В ПОДАРОК
0
Дней :
0 0
Часов :
0 0
Минут :
0 0
Секунд *до конца акции
Головной офис
Контакты
Адрес: г.Севастополь, Камышовое шоссе, 25А
Телефон: +7 (978) 761-91-05
Email: i89787619105@yandex.ru
ИП Калинина О.В.
ИНН 744403785258
ОГРНИП 318745600244284
ОГРНИП 318745600244284
Работаем по всему Крыму
г. Евпатория, ул. Эскадронная 32, ТЦ "Новая Площадь"
Тел.: +7 (978) 761-91-05
Тел.: +7 (978) 761-91-05
пгт. Черноморское
Тел.: +7 (978) 761-91-05
Тел.: +7 (978) 761-91-05
г. Симферополь
Тел.: +7 (978) 761-91-05
Тел.: +7 (978) 761-91-05
г. Ялта
Тел.: +7 (978) 761-91-05
Тел.: +7 (978) 761-91-05
г. Алушта
Тел.: +7 (978) 761-91-05
Тел.: +7 (978) 761-91-05
г. Судак
Тел.: +7 (978) 761-91-05
Тел.: +7 (978) 761-91-05