Аккуратный небольшой одноэтажный дом с кухней со стороны сада
Проект представляет собой аккуратный небольшой одноэтажный дом простой конструкции с кухней со стороны сада.
Стоимость дома: от 2 798 200 ₽
Комфорт в использовании помещений на одном уровне исключает переход с этажа на этаж, и связанные с ним неудобства.
Простая форма, конструкция и двускатная крыша, а также небольшая площадь позволяют вести строительство быстро и экономично, а также снизить эксплуатационные расходы эксплуатации.
Отсутствие несущих стен дает возможность вносить самые различные изменения в планировку. Для увеличения гостиной кухню можно обустроить на месте одной из комнат. Или наоборот можно увеличить одну из спален за счет дневной зоны.
Открытая планировка кухня зрительно увеличивает пространство гостиной.
Камин, расположенный рядом с котельной поможет сократить расходы на отопление в холодное время года, и конечно же наполнит гостиную уютом домашнего очага.
Выход на террасу, расположенный рядом с кухней позволит быстро и легко организовать обед на свежем воздухе.
Частично крытая терраса удобна для функционального использование внешнего пространства дома.
Отсутствие окон в боковых стенах дома позволяет разместить его на меньшем участке земли.
Простая форма, конструкция и двускатная крыша, а также небольшая площадь позволяют вести строительство быстро и экономично, а также снизить эксплуатационные расходы эксплуатации.
Отсутствие несущих стен дает возможность вносить самые различные изменения в планировку. Для увеличения гостиной кухню можно обустроить на месте одной из комнат. Или наоборот можно увеличить одну из спален за счет дневной зоны.
Открытая планировка кухня зрительно увеличивает пространство гостиной.
Камин, расположенный рядом с котельной поможет сократить расходы на отопление в холодное время года, и конечно же наполнит гостиную уютом домашнего очага.
Выход на террасу, расположенный рядом с кухней позволит быстро и легко организовать обед на свежем воздухе.
Частично крытая терраса удобна для функционального использование внешнего пространства дома.
Отсутствие окон в боковых стенах дома позволяет разместить его на меньшем участке земли.
ТЕХНОЛОГИЯ СТРОИТЕЛЬСТВА
Стены: газобетон/керамические блоки
Тип фундамента: ленточный сборно-монолитный/блочный ФБС
Кровля: цементно-песчаная черепица/металлочерепица/керамическая черепица
Технология: каменный
Тип перекрытия: по деревянным балкам
Тип фундамента: ленточный сборно-монолитный/блочный ФБС
Кровля: цементно-песчаная черепица/металлочерепица/керамическая черепица
Технология: каменный
Тип перекрытия: по деревянным балкам
ПЛОЩАДЬ И ГАБАРИТЫ
Площадь дома/общая площадь: 69,4 / 72,7 m²
Площадь застройки: 94,7 m²
Строительный объем: 390 m³
Высота дома: 5,53 m
Угол наклона кровли: 25°
Площадь кровли: 138,3 m²
Площадь застройки: 94,7 m²
Строительный объем: 390 m³
Высота дома: 5,53 m
Угол наклона кровли: 25°
Площадь кровли: 138,3 m²
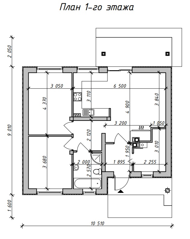
1-ЫЙ ЭТАЖ 69,4 / 72,7 m²
Прихожая: 3,7 m²
Котельная: 5,4 m²
Холл: 2,5 m²
Гостиная+ столовая: 15,8 m²
Кухня: 8,0 m²
Спальня: 13,3 m²
Спальня: 11,2 m²
Ванная комната: 5,2 m²
Холл: 4,3 m²
Терраса: 0,0 m² / 3,3 m²
Котельная: 5,4 m²
Холл: 2,5 m²
Гостиная+ столовая: 15,8 m²
Кухня: 8,0 m²
Спальня: 13,3 m²
Спальня: 11,2 m²
Ванная комната: 5,2 m²
Холл: 4,3 m²
Терраса: 0,0 m² / 3,3 m²
РЕКОМЕНДУЕМЫЕ РАЗМЕРЫ УЧАСТКА
Ширина: 16,51 m
Длина: 20,03 m
Размеры фасада: 10,51 m
Длина: 20,03 m
Размеры фасада: 10,51 m
ЛИНЕЙНЫЕ РАЗМЕРЫ ПОМЕЩЕНИЙ
Стоимость строительства
одноэтажного дома
одноэтажного дома
Базовый+
Фундамент, стены
от 20 000 ₽/м2
Проект АС
(архитектурно-строительный)
(архитектурно-строительный)
Разметка дома на участке (с посадкой дома), земляные работы (работа с экскаватором), щебеночная подготовка
Фундамент (свайный*, ленточный, ростверковый, блочный, плита*)
Обратная засыпка с трамбованием, с заведением коммуникаций (канализация и водоснабжение) ниже отметки 0.00 под полом
Армированная плита на отметке 0.00 - 100-120мм. Бетон марки М-250
Гидроизоляция под кладку
Колонны монолитные армированные,
Несущие стены: натуральный камень(ракушняк) 400 мм/ шлакоблок 400 мм/ газобетон* 200, 300 мм, полистиролбетон* 300 мм, кирпич*,
Сейсмопояс, несущие ригеля (армированный железобетонный каркас по всему периметру)
Несущие стены: натуральный камень(ракушняк) 400 мм/ шлакоблок 400 мм/ газобетон* 200, 300 мм, полистиролбетон* 300 мм, кирпич*,
Сейсмопояс, несущие ригеля (армированный железобетонный каркас по всему периметру)
Фундамент, стены, кровля
от 28 000 ₽/м2
Потолочное перекрытие: деревянное перекрытие, монолитное перекрытие*
Кровля: металлочерепица, профнастил, битумная черепица*, натуральная черепица*, каркас деревянный
Водосточная система
Дымовентиляционные каналы с выходом в кровле и обшивкой профлистом, установка зонта
Софиты металлические
*Цена на позицию под звездочкой рассчитывается индивидуально
Тёплый контур
от 38 700 ₽/м2
Комплектация
Базовая
Базовая
Утепление кровли по перекрытию в 100 мм (утеплитель изовер рулонный)
Устройство внутренних перегородок шлакоблок 120 мм, ракушечник 180 мм, газобетон 200 мм*, кирпич*
Окна пластиковые 2х камерные (три стекла), профиль Рихао
Дверь входная металлическая, утепленная
Утепление (пенопласт, минеральная вата*), декоративная штукатурка, вентилируемый фасад*, кирпич*
Автономная канализация до 3-4х человек "Под ключ" В ПОДАРОК
*Цена на позицию под звездочкой рассчитывается индивидуально
Комфорт
от 52 000 ₽/м2
Комплектация
Тёплый контур
Тёплый контур
Разводка по электричеству с установкой подрозетников и распред. коробок, с обвязкой щита электричества с группой автоматов (внутренние сети)
Штукатурка, шпаклевание на 1 слой под обои, устройство откосов (оконных, дверных)*
Разводка по воде (горячая, холодная) и канализации (внутренние сети)
Котельная: обвязка оборудования (котел входит в стоимость)
Прокладка теплых полов
Установка радиаторов (радиаторы входят в стоимость)
Чистовая стяжка и настилы под финишное покрытие пола
Автономная канализация до 3-4х человек "Под ключ" В ПОДАРОК
Техническое сопровождение ввода дома в эксплуатацию с получением адреса
*Цена на позицию под звездочкой рассчитывается индивидуально
С нами выгодно!
Проект дома - в подарок
При заказе строительства дома "под ключ" - мы разработаем проект бесплатно
Наши цены на 11% ниже рынка
Напрямую работаем с карьерами и производителями строительных материалов. Имеем постоянные бригады рабочих, свою производственную базу, свою строительную технику, свой РБУ. Поэтому себестоимость наших работ ниже, чем у конкурентов, а качество - выше
Фиксированная стоимость работ
Цена прописана в договоре и не меняется в ходе строительства
Оставьте заявку
и наши специалисты предоставят Вам бесплатную консультацию по всем интересующим Вас вопросам, а так же произведут детализированный расчёт стоимости интересующих Вас услуг и работ
ОФОРМИТЕ ЗАЯВКУ И ПОЛУЧИТЕ ПОДАРОК
АКЦИЯ
ПРИ ЗАКАЗЕ ДОМА
СЕПТИК ИЛИ ПРОЕКТ В ПОДАРОК
0
Дней :
0 0
Часов :
0 0
Минут :
0 0
Секунд *до конца акции
Головной офис
Контакты
Адрес: г.Севастополь, Камышовое шоссе, 25А
Телефон: +7 (978) 761-91-05
Email: i89787619105@yandex.ru
ИП Калинина О.В.
ИНН 744403785258
ОГРНИП 318745600244284
ОГРНИП 318745600244284
Работаем по всему Крыму
г. Евпатория, ул. Эскадронная 32, ТЦ "Новая Площадь"
Тел.: +7 (978) 761-91-05
Тел.: +7 (978) 761-91-05
пгт. Черноморское
Тел.: +7 (978) 761-91-05
Тел.: +7 (978) 761-91-05
г. Симферополь
Тел.: +7 (978) 761-91-05
Тел.: +7 (978) 761-91-05
г. Ялта
Тел.: +7 (978) 761-91-05
Тел.: +7 (978) 761-91-05
г. Алушта
Тел.: +7 (978) 761-91-05
Тел.: +7 (978) 761-91-05
г. Судак
Тел.: +7 (978) 761-91-05
Тел.: +7 (978) 761-91-05